Структура за вграждане 4 в 1 Solido GROHE
- ■
Носеща стоманена рамка, прахово боядисана
- ■
С казанче GD 2
- ■
Skate Cosmopolitan бутон с 2 степени
- ■
Bau Ceramic конзолна тоалетна
- ■
Bau Ceramic седалка за тоалетна чиния с плавно затваряне
Комплект за модерна баня
Структура за вграждане 4 в 1 Solido GROHE е практично и завършено решение за изграждане на съвременна санитарна зона с окачена тоалетна. Комплектът съчетава стабилна носеща конструкция, надеждно казанче, стилен бутон и висококачествена керамика, което го прави предпочитан избор както за ново строителство, така и при ремонт на бани.
Практическо приложение
Този модел е предназначен за монтаж в сухи стени или пред стена, като позволява лесно интегриране зад гипсокартон. Подходящ е за жилищни бани, хотели, офиси и обществени санитарни помещения, където се търси комбинация от естетика и функционалност. Благодарение на регулируемата височина и дълбочина, изделието може да се адаптира към различни пространства и изисквания.
Окачената тоалетна осигурява по-лесно почистване на пода и създава усещане за повече пространство. Пневматичният бутон предлага удобен контрол на водния поток, като допринася за икономия на ресурси в ежедневната употреба.
Технически характеристики
Продуктът е разработен с внимание към детайла и дълготрайната експлоатация, като включва:
Носеща стоманена рамка с прахово покритие за висока устойчивост
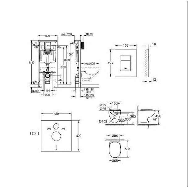
Казанче GD 2 с регулируем обем: 3–6 литра
Пневматичен механизъм с двоен режим и старт/стоп функция
Шумоизолация клас I и защита от конденз
Изходна тръба Ø 90 мм с редуктор Ø 90/110 мм
Регулируемо разстояние между болтовете: 180/230 мм
Бутон с размер 156 x 197 мм, изработен от ABS материал
GROHE Long-Life хромирано покритие за дълготраен блясък
Конзолна тоалетна от санитарен порцелан с безрингова технология
Седалка от дуропласт с плавно затваряне и Quick Release механизъм
Панти от неръждаема стомана за допълнителна здравина
Предимства пред стандартните решения
В сравнение с по-базовите варианти на пазара, този артикул предлага значително по-висока надеждност и комфорт. Стоманената рамка гарантира стабилност при дългосрочна употреба, докато шумоизолацията осигурява тиха работа – особено важно в жилищни сгради.
Безрингoвата технология на тоалетната намалява натрупването на замърсявания и улеснява поддръжката. В допълнение, водоспестяващата система оптимизира разхода на вода без компромис с ефективността на промиване.
Поддръжка и грижа
За да се запази отличното състояние на продукта, се препоръчва редовно почистване с неабразивни препарати. Хромираните повърхности трябва да се избърсват с мека кърпа, за да се избегнат надрасквания. Седалката може лесно да се демонтира благодарение на Quick Release функцията, което позволява по-добра хигиена.
Важно е също така периодично да се проверяват връзките и крепежните елементи, особено при интензивна употреба. Това гарантира дълготрайна и безпроблемна експлоатация.
Заключение
Ако търсите надеждно, функционално и модерно решение за вашата баня, този комплект е отличен избор. Solido GROHE комбинира качество, удобство и ефективност в едно цялостно решение.
*Посочената цена за продукта e валидна само при пазаруване онлайн. Възможно е да има несъответствие с цените и количествата на продукта в различните търговски обекти на строителен магазин ДИ ЕС ХОУМ.


